涿州
15732216251
您的位置: 首页 > 楼盘动态> 涿州万科城际之光户型图介绍-户型图点评

涿州万科城际之光户型图介绍-户型图点评

发布时间:2021-03-10 01:01 阅读量:1048 来源:涿州房价网

      万科城际之光当前开盘在售的是 精装公寓当前在售的是7.8.9号楼 万科城际之光户型设计初衷本着营造宽敞的空间感觉;附灵动的独立空间随心所欲的设计理念,使用生活区与功能分区更能保证居家私密性;办公畅想两相宜的省心时间一步到位。 以下是万科城际之光户型图大全-万科城际之光户型图介绍。


涿州万科城际之光


万科城际之光平层户型图:

      面积:平层约29-60㎡     层高:3.15米    ️均 价:8000-9000元/㎡(精装交房) 总 价:约26万-49万元   交房时间:最早2022年初️以下是万科城际之光平层户型图:


万科城际之光29平米户型图

万科城际之光46平米户型图

平层户型点评: 

    客厅与卧室相连,保证通风采光;既可以作为宽敞的住宅,也可以作为工作室,可以为你节省一些钱;厨房和餐厅可以与家人互动,可以相隔一定距离;房子的精装修和交付,会为你节省装修房子的时间和部分费用。


万科城际之光平层样板间

万科城际之光LOFT样板间


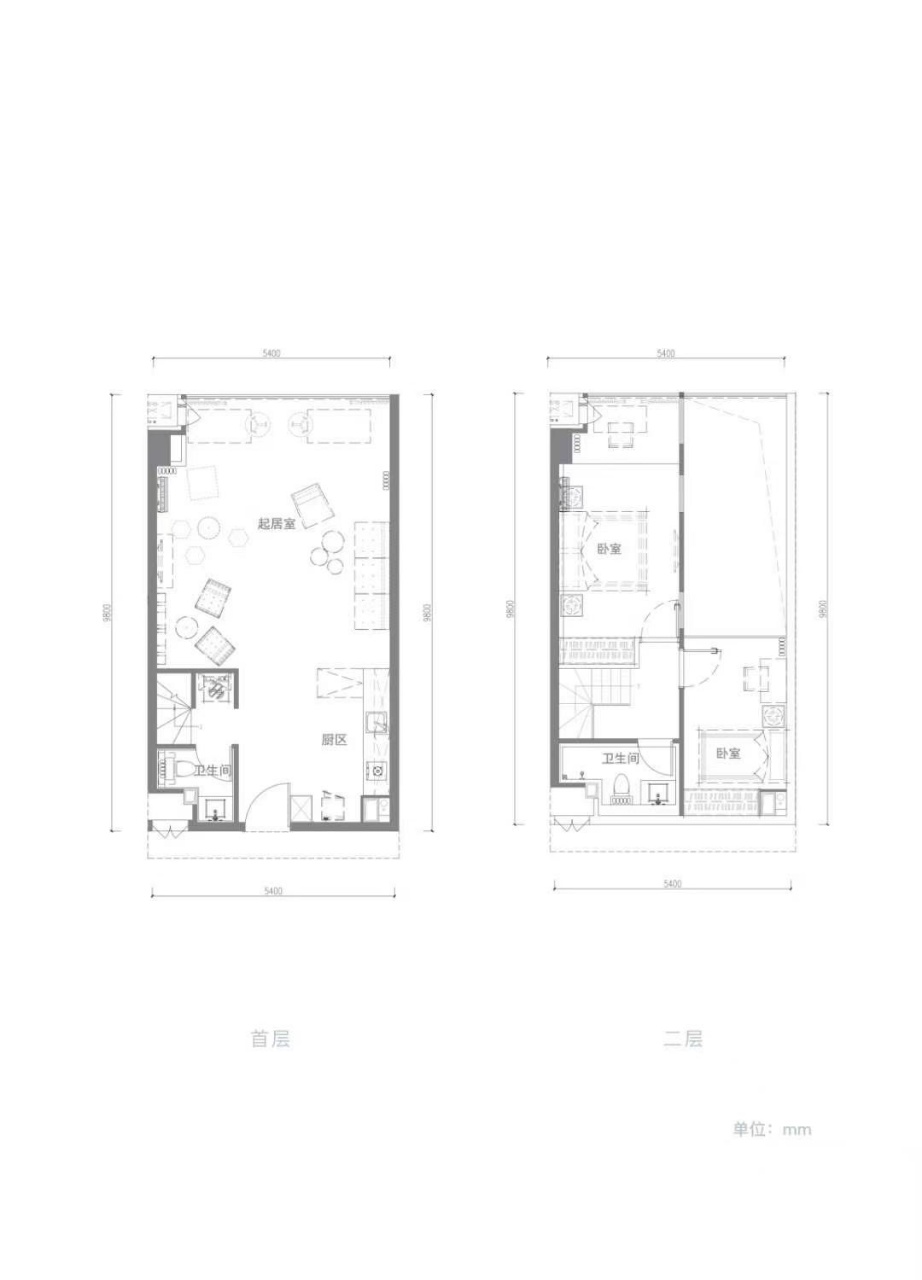
万科城际之光LOFT户型图:

      LOFT公寓(6#20-23层) 层高:4.5米 面积:约50㎡/52㎡ 南/北77㎡ 东/西 73㎡东南/西南/东北/西北交房:2022年6月    均价:7000-8000元/㎡ 总价约37万起   2万定金锁房,本次毛坯loft仅112套,毛坯loft交房卫生间做好,夹板隔层凹槽预留。 

万科城际之光LOFT户型图

万科城际之光52平米LOFT户型图

LOFT户型点评:

      涿州万科城际之光LOFT户型总价低无买房压力的微豪宅;买一得二、双倍使用空间,功能齐全,动静分区清晰、连贯、透明、布局合理;智能空间,方便出租,享受日新月异的生活;观景阳台阳光充足,自扩空间大有可为;免费标准化装修,省心省力。

涿州万科城际之光房价优惠信息

      以上是万科城际之光户型图大全-万科城际之光户型图介绍的全部相关介绍, 尽管万科城际之光户型面积不大,但合理利用每一寸空间大大增加了得房率好的户型不仅在后期大大提高居住舒适度后期转手出售价格也较高而且平层产品都是精装修交付省钱省时省力!总价低、首付压力小的小户型无论你是投资还是自住都是很好的选择。


预约咨询

对买房有疑问?

直接找涿州房价网专业置业顾问,

量身定制你的个人买房解决方案!

  • 免费咨询:15732216251